מעלית טלויזיה מרהיט עד 55 תוצרת דנמרק TS700
מעלון חשמלי לטלויזיה מרהיט
אחריות: 3 שנים ע"י היבואן הרשמי בישראל
זמן אספקה: עד 5 ימי עסקים
מק"ט / דגם: TS700A
יצרן: VENSET DENMARK
תשלומים : עד 12 שווים ללא ריבית
מחיר משלוח: 59 ₪
למה קונים אצלנו
אחריות
משלוח מהיר
שירות מכל הלב
מעלון לטלויזיה מרהיט או יחידת נגרות VENSET TS700 תוצרת דנמרק

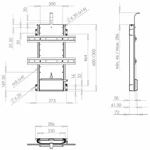
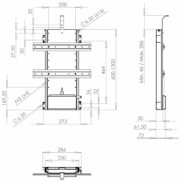
מתקן למסך,מעלית חשמלית למסך -TS700A למעלית יש מהלך מדהים לעומת הגובה שלה, מה שהופך אותה מושלמת להתקנה כמעט בכל מקום. ניתן גם להגביל את גובה המהלך בעליה או בירידה. המעלית מגיעה עם שלט אלחוטי RF, עם מפסק ידני, בקר הפעלה, שנאי 220V ל24V ותושבת למסך. ניתן לקבל עם יחידת שליטה אלחוטית IR (אופציונלי) בתוספת תשלום. אם המעלית מרגישה לחץ בירידה, המעלית תבצע פעולה הפוכה במהלך בלחץ השווה למשקל הטלוויזיה שעל המתקן.המחיר אינו כולל שילוח כל שהוא אלא אם נקבע אחרת בהזמנה.איסוף ע"י הלקוח.המחיר כולל מע"מ ואינו כולל התקנה בבית הלקוח, ניתן לקבל שירותי התקנה ע"י מתקין מורשה מטעם החברה
לפרטים והזמנות צלצלו: 052-7961222
המחיר אינו כולל יחידת נגרות והתקנה!
| ||








הוסף תגובה